Закладные детали для бассейнов
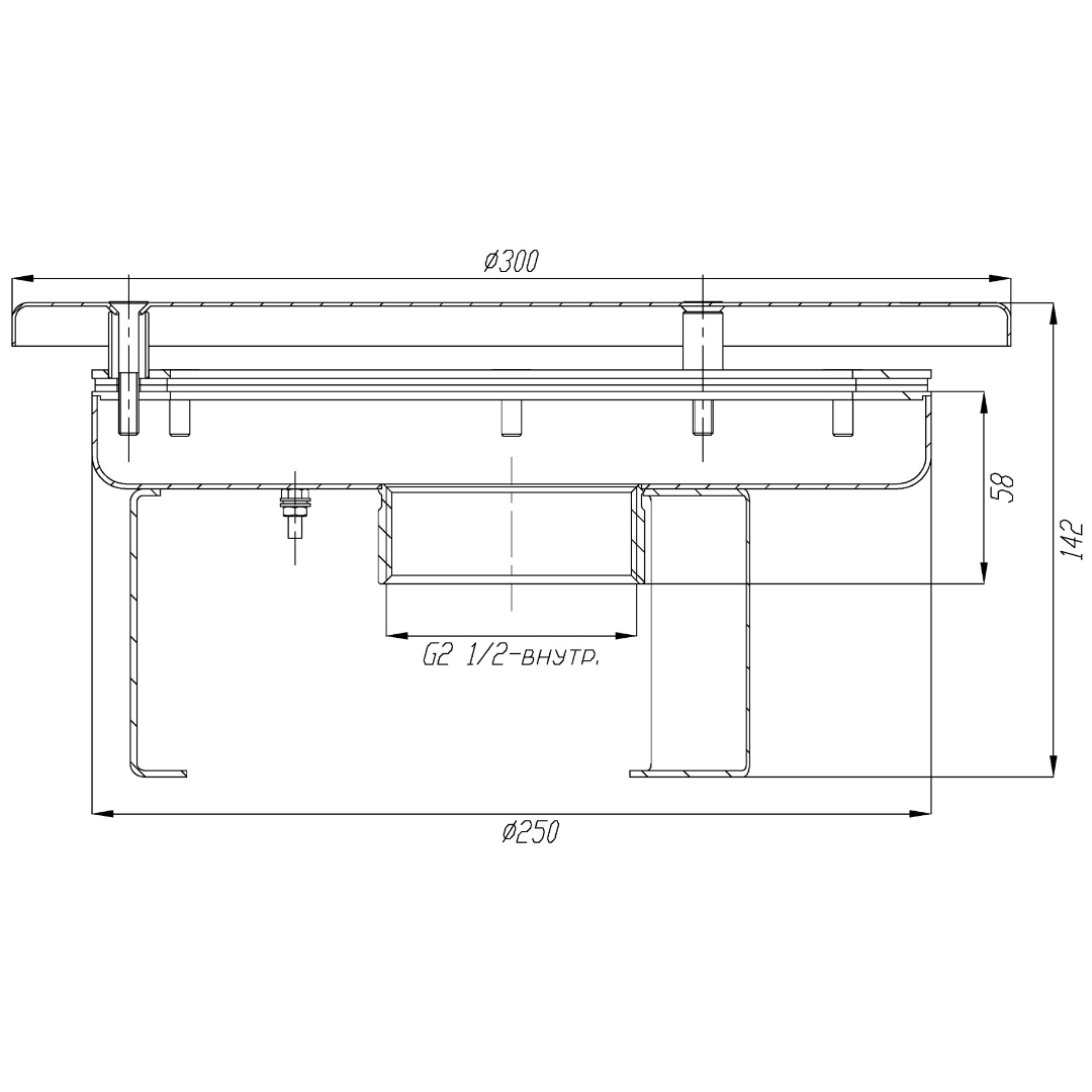
Водозабор Xenozone ВЗ.525.2 с антивихревой крышкой д. 250, AISI-304 (под пленку)
Водозабор Xenozone ВЗ.525.2 - предназначен для организации работы противотоков, водопадов и водяных пушек, систем гидромассажа в бассейнах. Изготовлен из нержавеющей стали, устойчивой к коррозии, воздействию ультрафиолета и химических реагентов. Оснащен круглой антивихревой крышкой.
| Характеристики | |
|---|---|
| Артикул | ВЗ.525.2 |
| Документация | Паспорт |
| Отделка бассейна | Пленка |
| Материал | Сталь AISI-304 |
| Пропускная способность | 20 м³/ч |
| Подключение | ВР 2 1/2" |
| Диаметр, мм | 250 |
| Производитель | Xenozone |
| Страна производства | Россия |
Похожие товары
